意式极简风装修,打造180㎡观承别墅的优雅生活

家,对热爱生活的人来说
不仅只是满足生活功能的场所
更是享受生活
释放心灵的地方
每一处的细节设计
都与生活的品质相联系
空间设计理念


位于昌平区的观承别墅,以其独特的意式极简风装修吸引了无数人的目光。整体风格定位为低饱和度的意式风格,色彩的饱和度偏低,整体呈现出一种硬朗而优雅的气质。这种风格将现代与古典元素巧妙地融合在一起,为家居生活带来全新的体验。
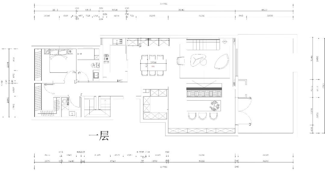
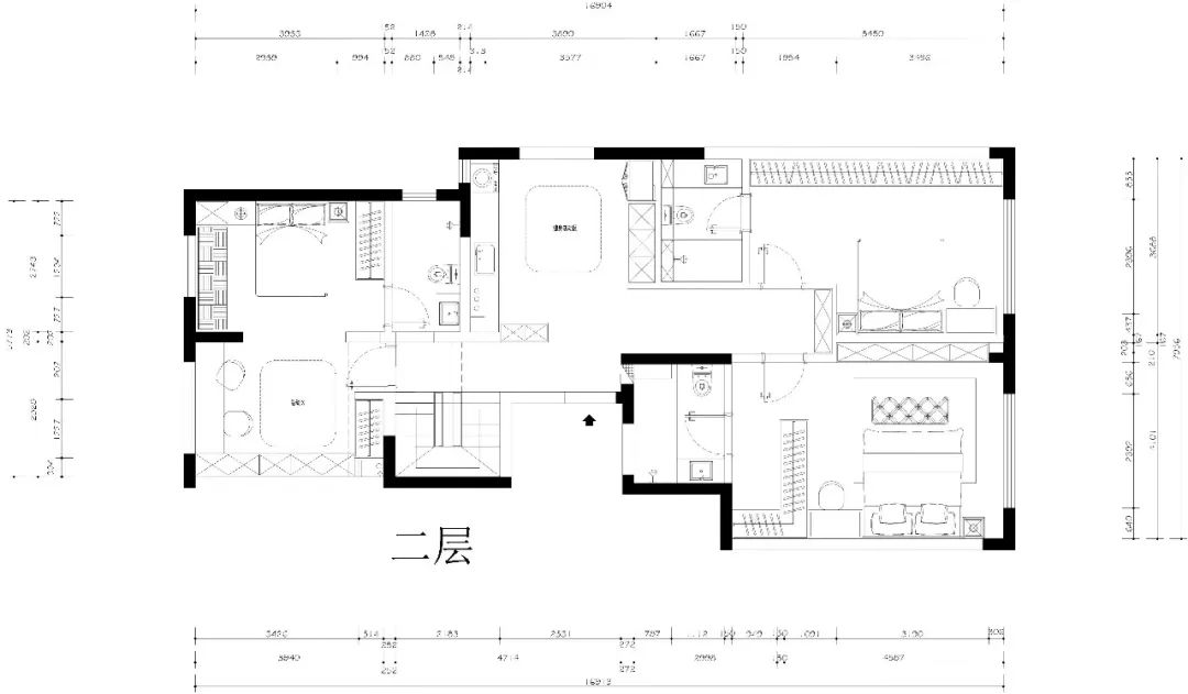
空间布局与装修特色
# 宽敞舒适的空间布局

该别墅的每个空间都经过精心设计,布局宽敞,通风采光良好。无主灯的设计在吊顶上使用,使整个空间的光感更加柔和,为居室带来一种舒适而宁静的氛围。


# 简约而不简单的设计风格


客厅、餐厅、厨房和卧室等区域的设计都遵循了意式的简约原则,强调线条的流畅和空间的通透。家具和装饰品的选择也注重简约和实用性,既符合整体风格,又不过分夸张。
亮点解析
# 低调的奢华


低饱和度的色彩运用使得整个空间看起来低调而奢华,让人感受到品质生活的魅力。同时,材质的选择也十分考究,各种天然石材和金属元素的运用,为空间增添了一份高贵的气息。


# 智能家居的完美诠释
全屋采用了智能家居系统不仅方便了日常生活,更提升了生活的品质和安全性。通过智能控制,灯光、空调、窗帘等都可以根据不同的需求和时间自动调节,为居住者带来更为人性化的生活体验。


意式极简风装修给人留下深刻印象,其整体风格定位明确,色彩搭配合理,空间布局宽敞舒适。


无主灯设计使光感更加柔和,为居室带来宁静而舒适的氛围。


同时,该别墅还完美诠释了现代与古典元素的融合,以及简约与实用的设计原则。
对于追求品质生活的您来说,昌平观承别墅无疑是一个值得一看的装修范本。



版权声明
本文仅作者转发或者创作,不代表旺旺头条立场。
如有侵权请联系站长删除
旺旺头条





发表评论:
◎欢迎参与讨论,请在这里发表您的看法、交流您的观点。