维拓建设丨为城市点亮一盏知识的灯

1个月前 (02-04) 阅读数 92 #综合



这里曾经是三里屯居民熟悉的老图书馆,也是许多人记忆中的阅读场景。而现在,我们有幸参与其蜕变为一座更具温暖、智慧和充满呼吸感的城市书房。



改变始于对“文化三里屯”的长期构想。作为打造国际消费中心城市核心商圈的重要一环,三里屯街道始终将文化空间建设视为连接社区、传承文明的关键载体。如今,这个400多平米的空间正以崭新的面貌呈现这一愿景:晨曦初透,微光自窗外倾泻而下,悬浮的尘粒在光影中翩跹起舞。沉睡书墙默然挺立,千万册书籍如沉睡的智慧密林,只待翻阅的指尖将其唤醒。随着时间缓慢的流动,空气里逐渐流淌着纸张摩挲的沙沙细响,偶尔夹杂着键盘的轻敲。读者们散落在阅读区:临窗的学子在木纹长桌上铺开笔记,光影在他笔尖跳跃;儿童区的孩子们盘坐在彩色的软垫上,被手中的绘本深深的吸引。


在信息奔流的时代,一座现代化的图书馆,早已超越了传统的藏书功能。它是一座城市静默而强大的精神坐标,是市民寻求知识、启迪与安宁的“第三空间”。 今天,我们带您走进三里屯街道图书馆装饰工程项目,一同回顾这座知识空间从旧到新、从蓝图到现实的改造历程。

程。



项目信息卡

项目名称:三里屯街道图书馆

项目地址:三里屯街道幸福二村38号楼四单元四层

建筑面积:450平方米

施工范围:室内精装修、综合天花、影音系统、灯光系统、全馆定制家具




01

总体规划

构建沉浸式阅读动线


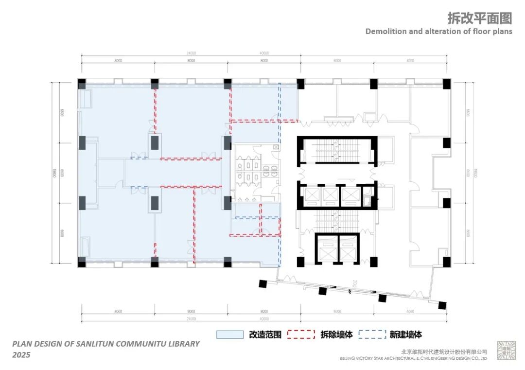
项目原始场地为小房间分隔的独立阅读区,动线及空间采光极为有限,改造伊始通过拆除各房间隔墙,获得合理规划动线条件的同时增加阅读和藏书空间的容效。



图书馆的灵魂在于其空间叙事。在设计之初,团队便确立了“静区”与“动区”清晰分离的原则。


静区:如普通阅读区、电子检索阅读区,我们将其置于采光良好且远离主干道的位置。


动区:如儿童阅览区、多功能区,则设置在入口附近,形成热闹的公共交流场。



通过动线的规划,读者从喧嚣的城市街道进入图书馆,会经历一个由动至静的过渡空间,心境也随之沉静下来,自然而然地投入阅读的氛围中。




02

空间巡礼

功能与感受的融合



1. 舒适阅读区:一场采光与光学的计算


自然光采光对于阅读的舒适度尤为重要。原有空间采用石膏板吊顶,吊顶下仅净高2.05m,在阳光充足的午后室内照度仍特别有限,我们考虑通过取消吊顶、规划管线、提升设备高度,使阅读空间获得充分的自然采光。



在灯光上,我们摒弃了传统图书馆的均匀照明,辅以专业灯光分析,采用了“基础照明+重点照明” 的矩阵系统。每个阅读座位上方都有角度可调的射灯,确保桌面照度充足且无眩光,为长时间阅读提供最舒适的视觉保障。


2. 搜索藏书区:安全、承重与美学的平衡


面对开放式的书墙,其承重与安全是施工的核心挑战,数次靠墙架倾倒的案例警示我们这是一个不可忽视的安全隐患。我们的解决方案是:局部采用钢结构作为骨架增强稳定性,外部覆以定制化的实木多层板。每一层书架都经过严格的承重测试,确保在满载书籍时也稳如磐石。


同时,所有书架阳角均采用圆角防撞工艺,书架两侧端头圆角背板增加靠墙稳定性,细节之处体现了对使用者的关注。



3. 儿童阅览区:一个安全、奇幻的探索乐园


这里是图书馆里最富童趣的角落。我们所有的家具都进行了圆角化软包处理,地面铺设了柔软的环保PVC地胶,即使摔倒也能得到缓冲作用。


色彩明亮的定制书柜被设计成小房子和树洞的形状,激发孩子们的探索欲。此区域独立设置在隔音玻璃室内,既让孩子们可以自由交流,又不干扰其他区域的宁静。




03

专项工艺

看不见的匠心


  1. 光影的艺术


全馆的灯光色温经过计算,从入口的4000K中性光,过渡到阅读区的3500K暖黄光,潜移默化地引导情绪,营造专注氛围。



2. 材质的对话


我们大量使用了环保木材、微水泥和金属,不同材质的拼接处,收口工艺简洁而精准,体现了极致的细节把控。


3. 绿色与环保


作为公共文化项目,我们选用的所有涂料、板材和胶粘剂均符合国家环保标准,真正做到对每一位读者健康负责。


4. 文化的拓展


三里屯街道图书馆场地虽然仅400余平,但其地理位置辐射三里屯幸福一村办公、居民及其周边小区和学校的文化建设需求,打造一个打造集阅读、学习、交流于一体的复合型文化空间势在必行,通过拓展投影幕布、背景音乐等播放设施,三里屯街道图书馆已成功举办多项读书分享会、文化讲座、亲子阅读等品牌活动,使这里成为居民感受文化魅力、丰富精神生活的重要社区阵地。




04

结 语

感受静谧与舒适



当装饰施工的喧嚣早已沉淀为书架上的纹理,工具的印记也隐入纸张的缝隙,所有的设计、规划、执行、调校都已隐退为背景,化作空气中恰到好处的静谧与舒适。这座图书馆正以它应有的方式呼吸着——成为了城市里一个温暖而开放的思想容器,静静等待着每一个寻求知识慰藉与灵感闪烁的灵魂。



团队信息

设计团队:王大宇、白新阳、康英南

工程团队:李文革、李 利、王俊壮


图片
| Further Reading |
——延伸阅读——
图片
图片

版权声明

本文仅作者转发或者创作,不代表旺旺头条立场。
如有侵权请联系站长删除

发表评论:

◎欢迎参与讨论,请在这里发表您的看法、交流您的观点。

热门